
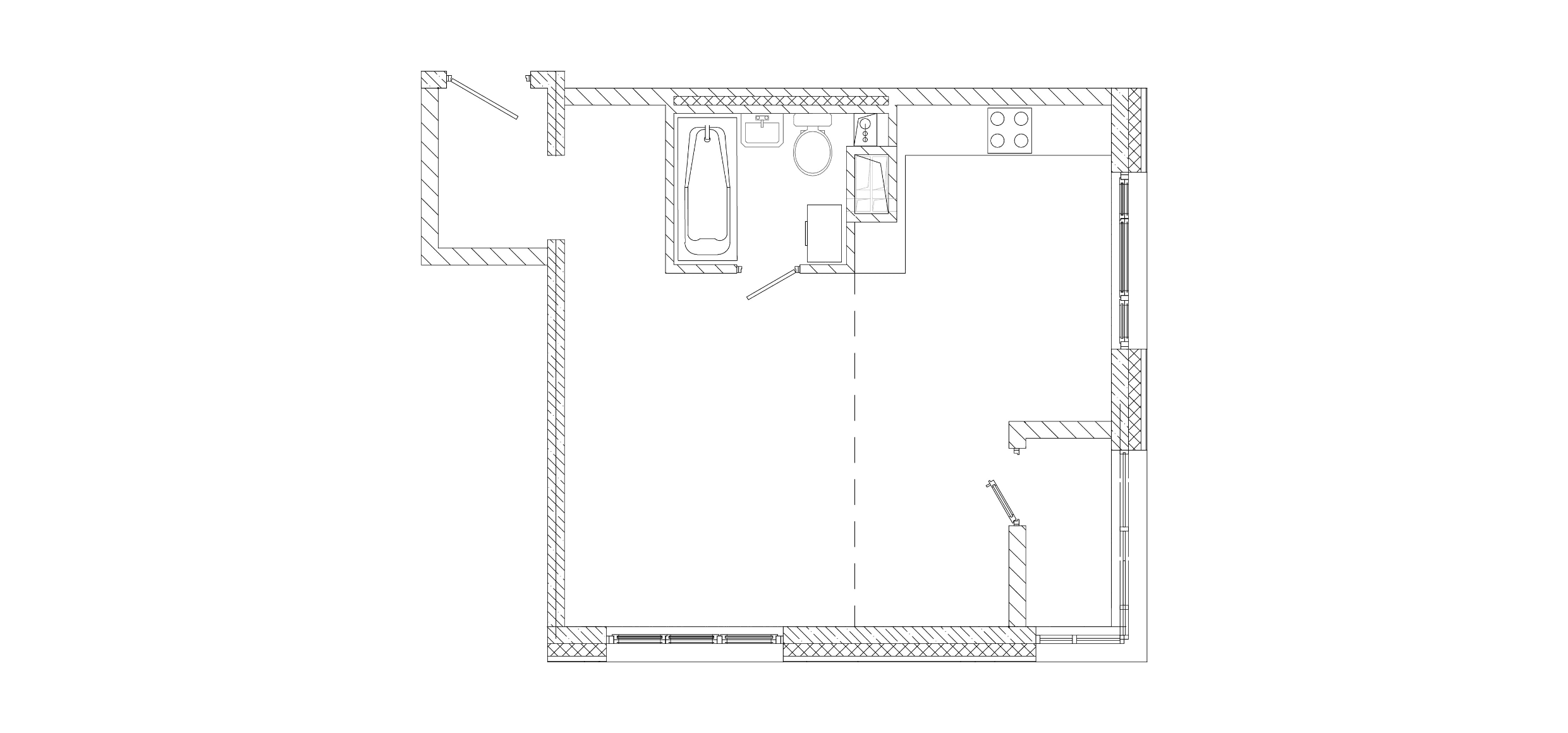
1 комнатная квартира
Улица Нейбута, 137 стрЛенинский район- Площадь
- 39,8 м²
- Этаж
- 13
- Лифт
- Нет
- Балкон
- Нет
- Терраса
- Нет
- Цена за метр
- 197 149,52 ₽
- Жилой комплекс
- Дом с углом
- Стоимость
- 7 846 551 ₽
Услуги
Рекомендуем посмотреть

Решим квартирный вопрос
Отправляйте заявку на консультацию и получите ответ на любой вопрос










