
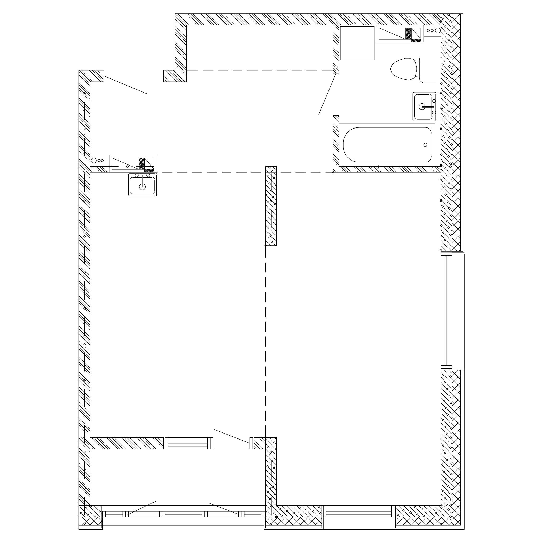
1 комнатная квартира
ул. Снеговая, 9Первореченский район- Площадь
- 37,97 м²
- Этаж
- 20 из 25
- Лифт
- Есть
- Балкон
- Нет
- Терраса
- Нет
- Срок сдачи
- 2026
- Цена за метр
- 212 000 ₽
- Жилой комплекс
- ЖК Исторический
- Стоимость
- 8 049 640 ₽
Услуги
Рекомендуем посмотреть

Решим квартирный вопрос
Отправляйте заявку на консультацию и получите ответ на любой вопрос










