
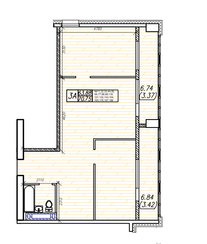
3 комнатная квартира
Пихтовая улица, 38Первомайский район- Площадь
- 62,64 м²
- Этаж
- 23
- Лифт
- Нет
- Отделка
- Предчистовая
- Балкон
- Нет
- Терраса
- Нет
- Жилой комплекс
- Port May (дом 3)
- Стоимость
- 14 748 000 ₽
Услуги
Рекомендуем посмотреть

Решим квартирный вопрос
Отправляйте заявку на консультацию и получите ответ на любой вопрос










