
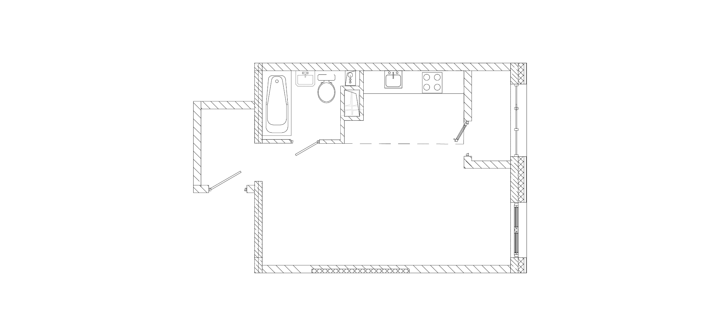
1 комнатная квартира
Пихтовая улица, 38Первомайский район- Площадь
- 32,46 м²
- Этаж
- 4
- Лифт
- Нет
- Отделка
- Предчистовая
- Балкон
- Нет
- Терраса
- Нет
- Жилой комплекс
- Port May (дом 3)
- Стоимость
- 6 839 000 ₽
Услуги
Рекомендуем посмотреть

Решим квартирный вопрос
Отправляйте заявку на консультацию и получите ответ на любой вопрос










