
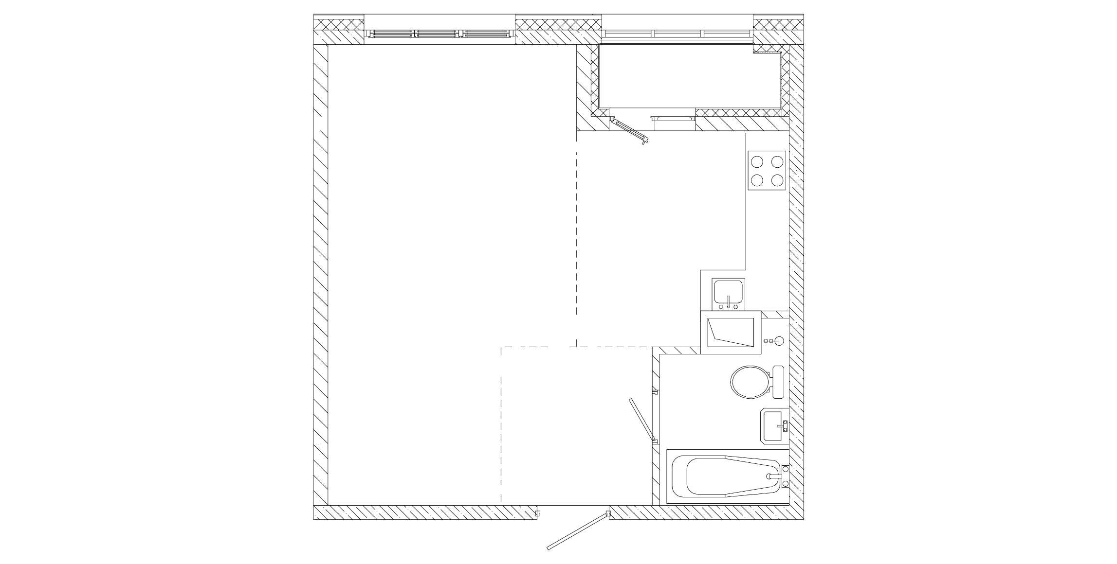
1 комнатная квартира
Улица Коммунаров, 15Первомайский район- Площадь
- 43,78 м²
- Этаж
- 17
- Лифт
- Нет
- Отделка
- Черновая
- Балкон
- Нет
- Терраса
- Нет
- Жилой комплекс
- Меридианы Улисса
- Стоимость
- 7 297 000 ₽
Услуги
Рекомендуем посмотреть

Решим квартирный вопрос
Отправляйте заявку на консультацию и получите ответ на любой вопрос










