
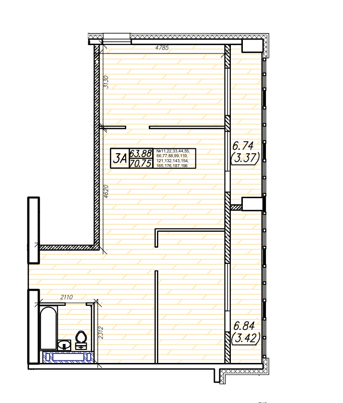
3 комнатная квартира
Улица Нейбута, в районе, д. 137Ленинский район- Площадь
- 63,6 м²
- Этаж
- 19
- Лифт
- Нет
- Отделка
- Чистовая
- Балкон
- Нет
- Терраса
- Нет
- Жилой комплекс
- Гринхилс
- Стоимость
- 14 568 674 ₽
Услуги
Рекомендуем посмотреть

Решим квартирный вопрос
Отправляйте заявку на консультацию и получите ответ на любой вопрос










