
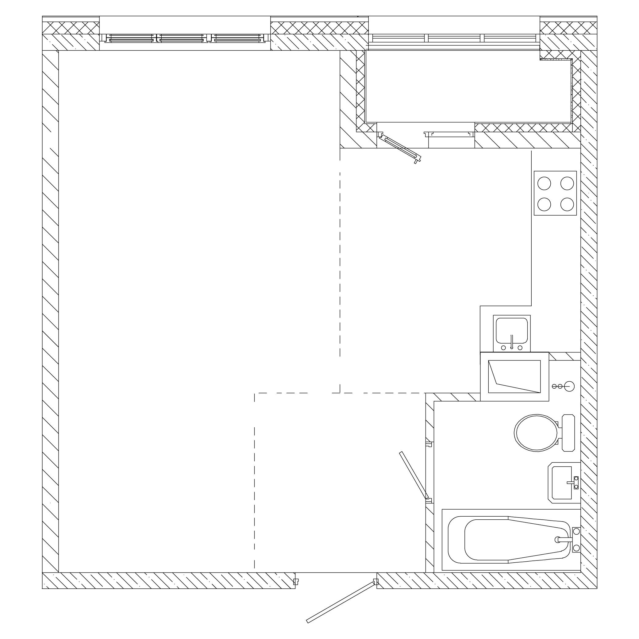
1 комнатная квартира
Переулок Куйбышева, 11аСоветский район- Площадь
- 42,52 м²
- Этаж
- 15
- Лифт
- Нет
- Отделка
- Черновая
- Балкон
- Нет
- Терраса
- Нет
- Жилой комплекс
- Шоколад
- Стоимость
- 7 137 100 ₽
Услуги
Рекомендуем посмотреть

Решим квартирный вопрос
Отправляйте заявку на консультацию и получите ответ на любой вопрос










