
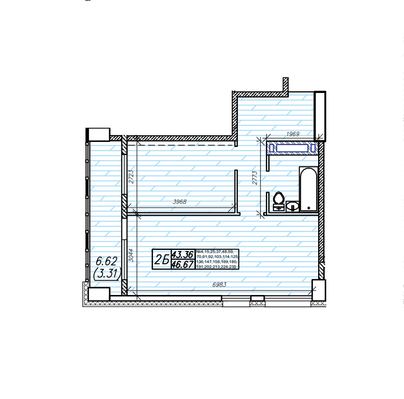
2 комнатная квартира
Переулок Куйбышева, 11аСоветский район- Площадь
- 65,61 м²
- Этаж
- 5
- Лифт
- Нет
- Отделка
- Предчистовая
- Балкон
- Нет
- Терраса
- Нет
- Жилой комплекс
- Шоколад
- Стоимость
- 11 291 900 ₽
Услуги
Рекомендуем посмотреть

Решим квартирный вопрос
Отправляйте заявку на консультацию и получите ответ на любой вопрос









