
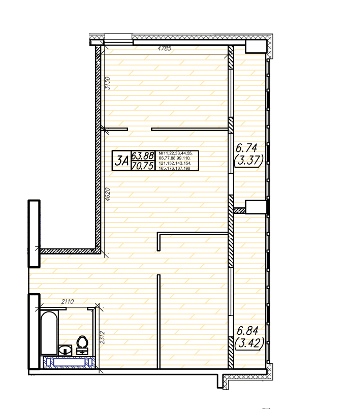
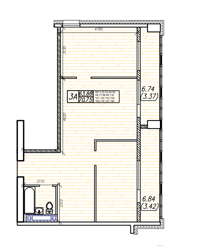
3 комнатная квартира
3-я Поселковая улица, 17Первомайский район- Площадь
- 77,28 м²
- Этаж
- 20
- Лифт
- Нет
- Балкон
- Нет
- Терраса
- Нет
- Жилой комплекс
- Острогорный
- Стоимость
- 14 837 760 ₽
Услуги
Рекомендуем посмотреть

Решим квартирный вопрос
Отправляйте заявку на консультацию и получите ответ на любой вопрос










