
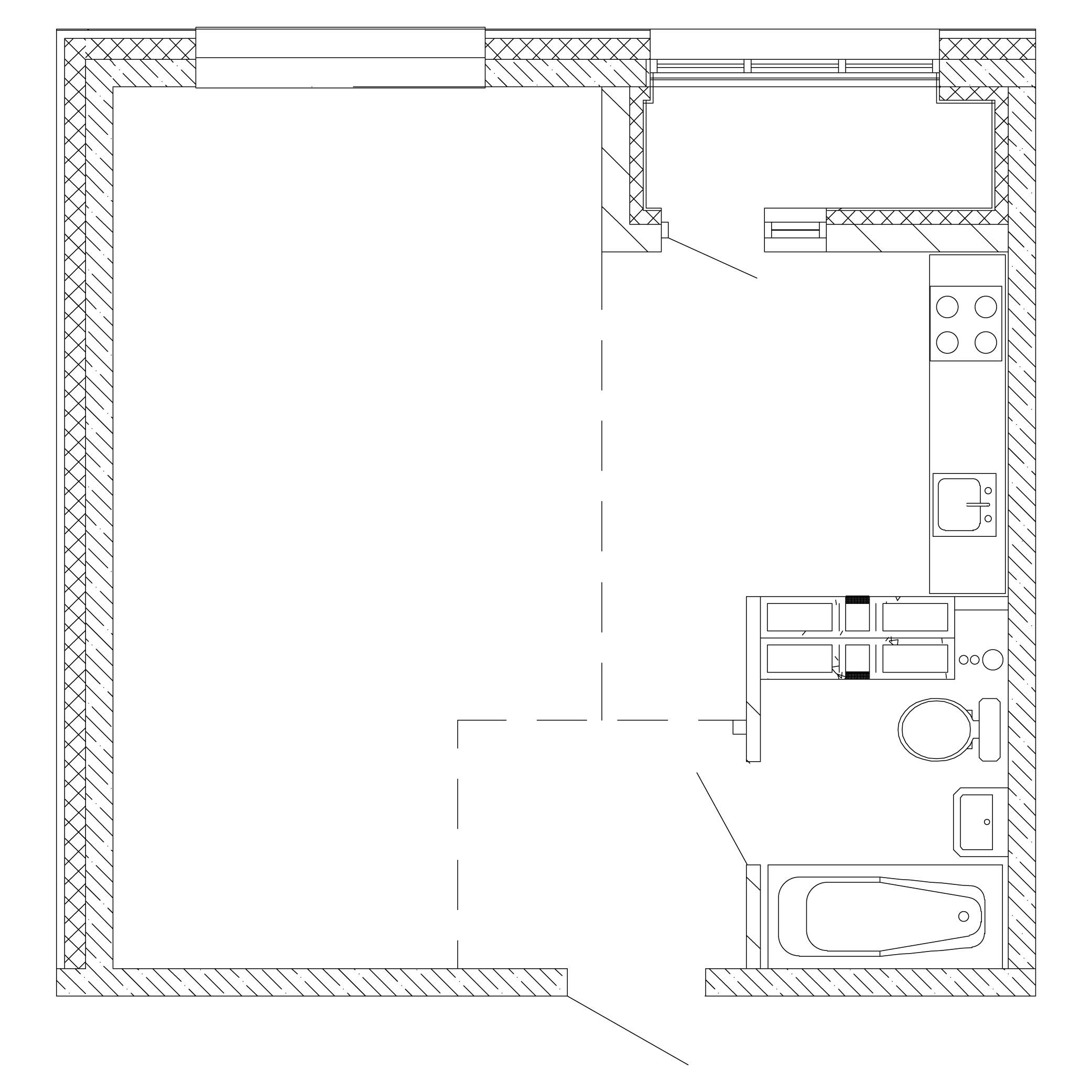
1 комнатная квартира
Луговая улица, 53 стрЛенинский район- Площадь
- 37,1 м²
- Этаж
- 15
- Лифт
- Нет
- Отделка
- Предчистовая
- Балкон
- Нет
- Терраса
- Нет
- Цена за метр
- 205 000 ₽
- Жилой комплекс
- Balance
- Стоимость
- 7 605 500 ₽
Услуги
Рекомендуем посмотреть

Решим квартирный вопрос
Отправляйте заявку на консультацию и получите ответ на любой вопрос










