
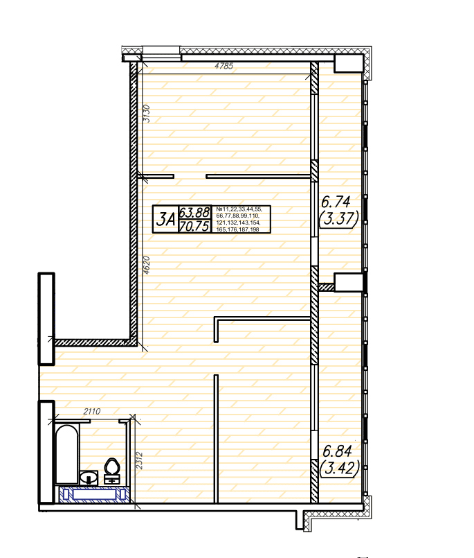
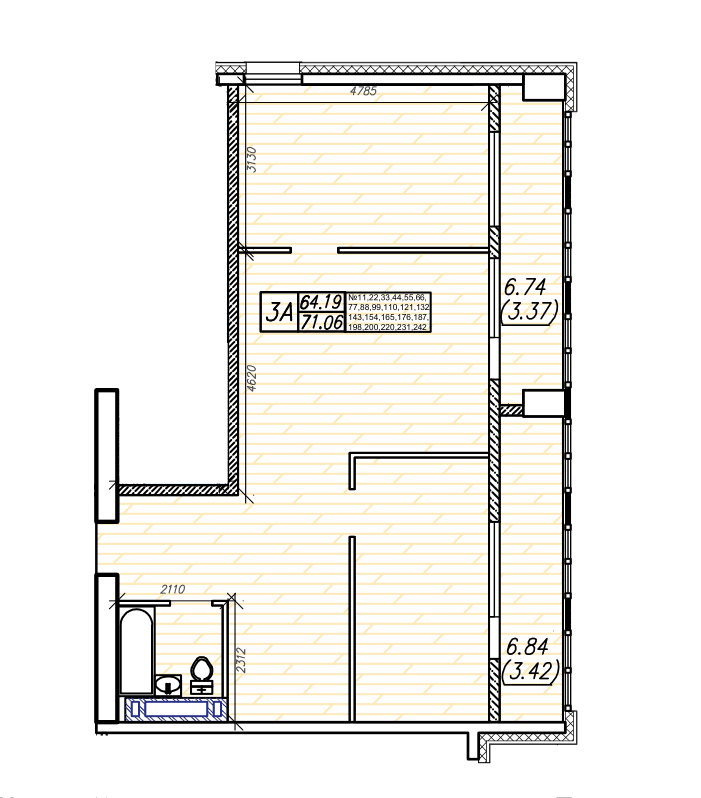
3 комнатная квартира
3-я Поселковая улица, 13Первомайский район- Площадь
- 68,7 м²
- Этаж
- 3
- Лифт
- Нет
- Отделка
- Предчистовая
- Балкон
- Нет
- Терраса
- Нет
- Цена за метр
- 202 395,92 ₽
- Жилой комплекс
- Wave
- Стоимость
- 13 904 600 ₽
Услуги
Рекомендуем посмотреть

Решим квартирный вопрос
Отправляйте заявку на консультацию и получите ответ на любой вопрос










