
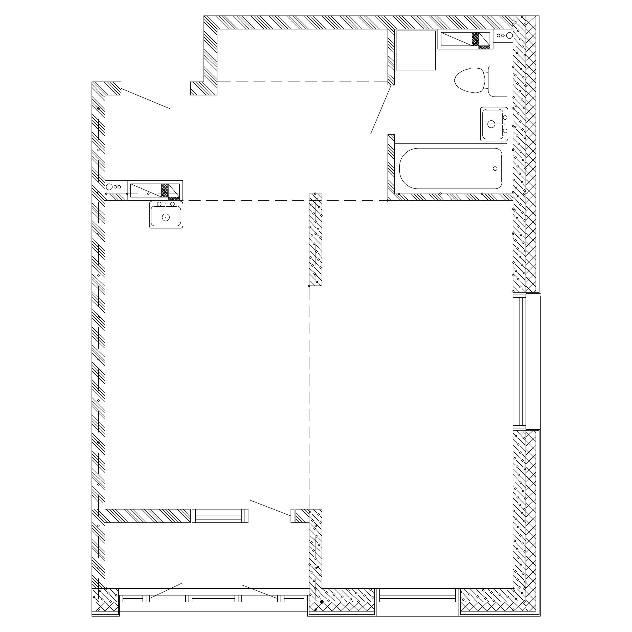
1 комнатная квартира
Тухачевского, 70аПервореченский район- Площадь
- 45,8 м²
- Этаж
- 18 из 21
- Лифт
- Есть
- Балкон
- Нет
- Терраса
- Нет
- Цена за метр
- 200 000 ₽
- Жилой комплекс
- ЖК Лайм
- Стоимость
- 9 160 000 ₽
Услуги
Рекомендуем посмотреть

Решим квартирный вопрос
Отправляйте заявку на консультацию и получите ответ на любой вопрос









