
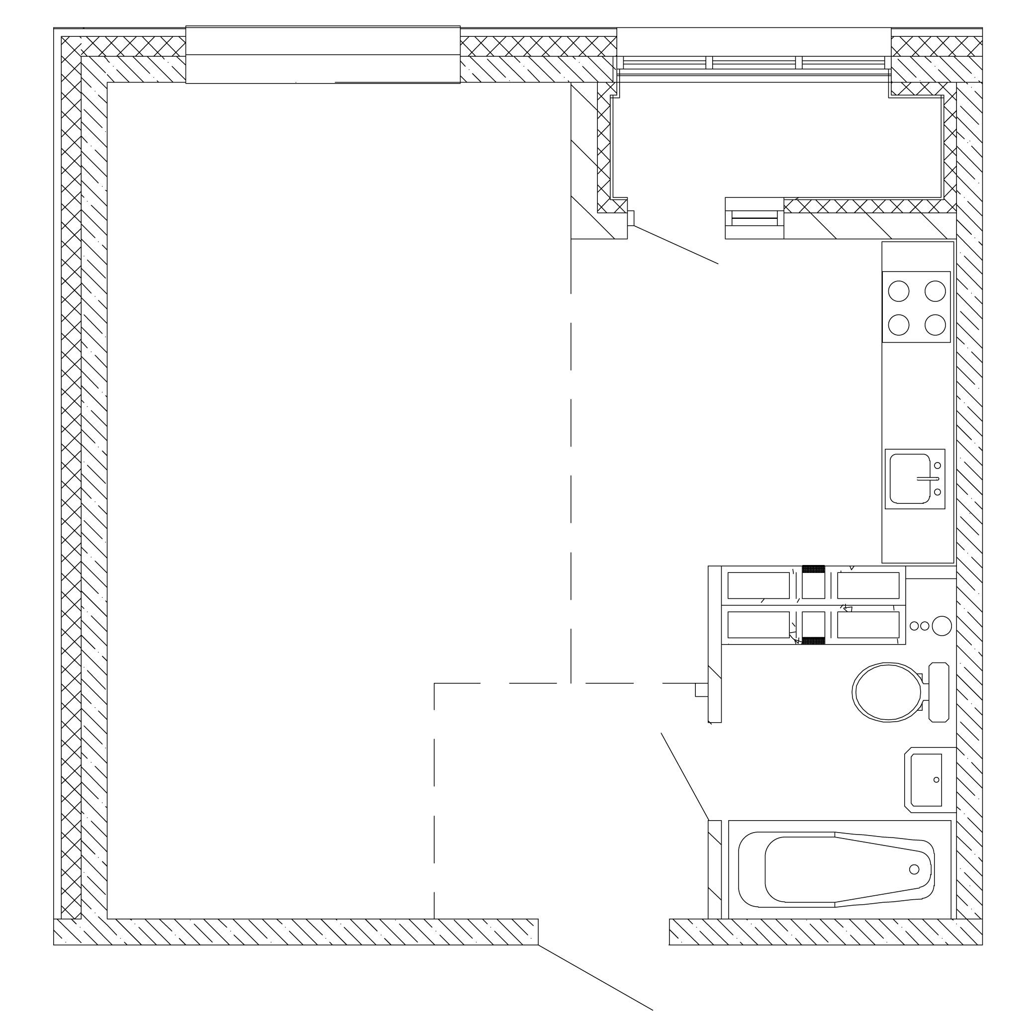
1 комнатная квартира
ул. Баляева, д. 49Первореченский район- Площадь
- 31,03 м²
- Этаж
- 4 из 19
- Лифт
- Есть
- Отделка
- Черновая
- Балкон
- Нет
- Терраса
- Нет
- Срок сдачи
- 2023
- Цена за метр
- 263 000 ₽
- Жилой комплекс
- ЖК Горизонт
- Стоимость
- 8 160 890 ₽
Услуги
Рекомендуем посмотреть

Решим квартирный вопрос
Отправляйте заявку на консультацию и получите ответ на любой вопрос










