
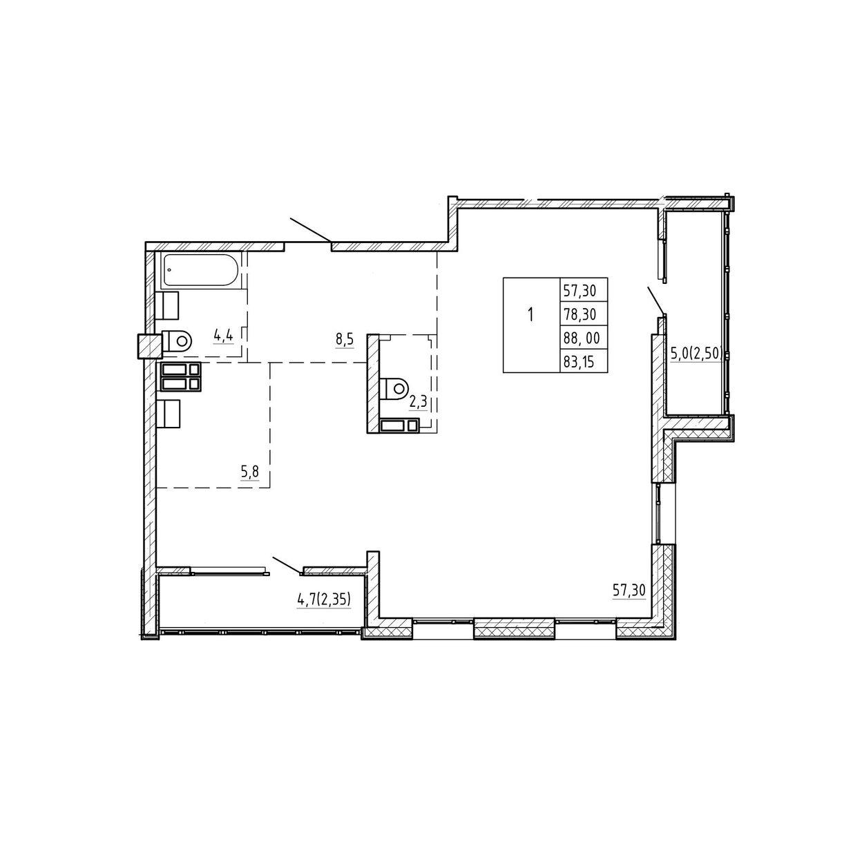
4 комнатная квартира
ул. Борисенко 100кПервомайский район- Площадь
- 70,38 м²
- Этаж
- 26 из 29
- Лифт
- Есть
- Отделка
- Черновая
- Балкон
- Нет
- Терраса
- Нет
- Срок сдачи
- 2028
- Цена за метр
- 175 150 ₽
- Жилой комплекс
- ЖК Соболь
- Стоимость
- 12 327 057 ₽
Услуги
Объекты не найдены
Измените параметры поиска или повторите попытку позднее
Рекомендуем посмотреть

Решим квартирный вопрос
Отправляйте заявку на консультацию и получите ответ на любой вопрос










