
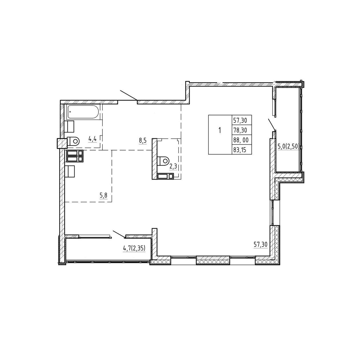
4 комнатная квартира
г. Владивосток, ул. Мусорского, д. 2Советский район- Площадь
- 81,49 м²
- Этаж
- 18 из 23
- Лифт
- Есть
- Отделка
- Черновая
- Балкон
- Нет
- Терраса
- Нет
- Срок сдачи
- 2024
- Цена за метр
- 175 600 ₽
- Жилой комплекс
- ЖК Прибрежный
- Стоимость
- 14 309 644 ₽
Услуги
Объекты не найдены
Измените параметры поиска или повторите попытку позднее
Рекомендуем посмотреть

Решим квартирный вопрос
Отправляйте заявку на консультацию и получите ответ на любой вопрос










